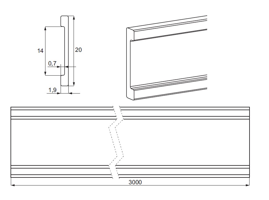
Flat Aluminium Bar w/Groove,3000x20x1,9mm, Black Anodized

Artikelnummer 15.22.530-2