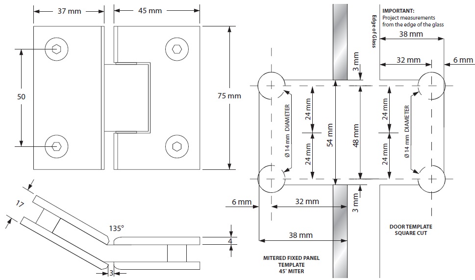
Shower Hinge "Jun" 135DG, CPL, Glass/Glass, 6-8mm Glass Thickness, No Angle Adjustment Function But 25 DG Return Function, Brass Material, Straight Edges

Artikelnummer 15.24.215-0